Дымогенератор с компрессором: как работает устройство
Дымогенератор в паре с компрессором работают следующим образом. Генератор дыма подсоединяется к коптильной камере с помощью дымохода. В корпус (камеру сгорания) генератора засыпают опилки или сухую щепу. Далее, к входному штуцеру генератора дыма подсоединяется трубка или шланг, ведущий к воздушному компрессору, после чего поджигают ранее засыпанные опилки. Благодаря потоку воздуха, создаваемого нагнетательным аппаратом, в эжекторе дымогенератора создается разрежение. Под воздействием последнего дым начинает интенсивно перемещаться в сторону камеры, где находятся продукты.
Компрессор для дымогенератора влияет на функционирование всей системы в целом, поскольку от напора дыма, поступающего в объем для копчения, зависит конечное качество продукта. Также от мощности компрессора зависит расход топлива. Чем мощнее будет поток воздуха, тем больше топлива будет расходоваться.
Компрессор для подключения к дымогенератору можно купить в готовом виде. Но цена на данный агрегат является достаточно высокой, и может превышать стоимость всей коптильни. Поэтому многие умельцы предпочитают изготовить данный узел самостоятельно, буквально из подручных материалов.
Перед началом собственноручного изготовления компрессора, необходимо знать основные требования, которые к нему предъявляются.
- Аппарат должен выдерживать длительный непрерывный режим работы, поскольку холодное копчение продуктов подразумевает обработку их дымом на протяжении 24 часов, а иногда и больше.
- Агрегат должен быть экономичным, не только по потреблению электроэнергии, но и по стоимости запчастей к нему.
- Компрессор должен быть оборудован регулятором потока воздуха. От силы потока воздуха зависят вкусовые качества готового продукта и его способность к хранению.
Дымогенератор из огнетушителя своими руками: простой и надежный вариант
Такая конструкция является, пожалуй, наиболее простой. Для ее сборки нужен старый огнетушитель. Корпус этого устройства обязательно должен быть металлическим
Важно запомнить, что огнетушитель не должен иметь ржавые стенки. В случае если в приборе еще осталось содержимое, необходимо опустошить его и тщательно промыть перед началом работы
Из старого огнетушителя можно сделать дымогенератор для холодного копчения. Видео на эту тематику можно найти, воспользовавшись поисковой строкой вашего браузера. Правильная и четкая последовательность действий позволит выполнить качественную трансформацию огнетушителя в дымогенератор.

Для того чтобы изготовить дымогенератор, берется огнетушитель диаметром около 100 мм и длиной в 500 мм
Вначале потребуется разрезать огнетушитель. Надрез производится в верхней части (на 5 см ниже горловины). В результате получается простая крышка, которая не нуждается в дополнительном видоизменении. Далее необходимо выполнить два отверстия в нижней части огнетушителя. Желательно, чтобы они располагались ниже среза, сделанного в верхней части, на 5-6 см. Оптимальный диаметр в этом случае должен составлять 2,5 мм.
После организации отверстий можно приступить к следующему этапу – привариванию к ним трубок. Длина изделий не должна превышать 7-8 см. Одна трубка будет служить дымоходом, а вторая необходима для подачи воздуха. Данная конструкция учитывает верхнее расположение эжектора, а отверстие для подсоса воздуха будет находиться в нижней части устройства.
Дымогенератор, изготовленный из старого огнетушителя, способен бесперебойно функционировать около 7 часов. Таким образом производится сборка простейшего устройства для нагнетания дыма.

Из огнетушителя дым в камеру для копчения попадает через дюймовую трубу длиной 150‑250 мм, вкрученную в тройник
Дымогенератор позволяет значительно упростить процесс копчения. Для самостоятельной сборки этого прибора необходимо составить предварительный чертеж. В нем обязательно указываются размеры отдельных составляющих. Изготовление данного прибора производится в соответствии с инструкцией. Если вы не уверены в собственных силах, то тогда лучшим выходом будет приобретение готового дымогенератора.
Традиционное устройство коптильни холодным дымом
Устройство коптилен разного типа
Независимо от типа копчения источником дыма является тлеющий костер. При холодном копчении главное чтобы дым был холодным или теплым, но не горячим. Максимальная температура — порядка +40°C. Для этого костер разводят за несколько метров от коптильного шкафа, между ними прокладывают трубу -дымопровод. Проходя по этому пути дым остывает до приемлемых температур.
Устройство дымохода — длительный процесс. Трасса прохождения дыма должна обеспечить нормальный теплосъем и должна быть при этом герметичной. Для создания дымохода можно использовать стандартный металлический дымоход (но не из оцинкованной стали), но чтобы дым лучше остывал, трубу желательно закопать в землю. В общем, непростая задача. Именно по этому предпочитают сделать коптильню горячего копчения — меньше проблем — над костром установил бочку и коптишь…
Но есть простой дымогенератор для холодного копчения, который обойдется буквально в несколько тысяч. Но для работы потребуется сварочный аппарат и умение с ним обращаться. Все остальное можно купить на рынке или в строительном магазине. При наличи всех компонентов собрать дымогенератор для копчения своими руками можно за час-два.
Правила использования дымогенератора: фото и эксплуатационные особенности
После окончания монтажа дымогенератора нужно проверить его эффективность. Использовать данный прибор довольно просто. Рассмотрим, как правильно эксплуатировать дымогенератор, изготовленный в домашних условиях.
Вначале нужно загрузить в конструкцию щепу. Количество топлива может быть разным. Как правило, его суммарный вес составляет около 0,7-0,8 кг. Важный момент заключается в выборе породы дерева, применяемого для получения дыма, необходимого для копчения. Категорически нельзя использовать хвойные деревья, так как они при нагреве выделяют смолы, которые испортят продукты, загруженные в коптильный аппарат. Для копчения рекомендуется подбирать дрова и опилки, изготовленные из лиственных и фруктовых пород деревьев (например, дуб, клен или яблоня).
Технология использования данного устройства подробно объясняется в соответствующих видео. Дымогенератор после наполнения опилками необходимо закрыть, а затем нужно присоединить дымоходную трубку к коптильному резервуару. Аппарат может прикрепляться непосредственно к камере. В таком случае его просто устанавливают на свое место – вплотную к стенке коптильни.

После окончания монтажа всех необходимых составляющих дымогенератора, нужно проверить его работоспособность
Для того чтобы поджечь опилки, нужно открыть боковую дверцу. После их розжига включается компрессор, перегоняющий воздух. После выполнения всех вышеуказанных манипуляций начинается процесс копчения. Остается только выждать нужное время, которое потребуется для того, чтобы приготовить продукты в коптилке.
Варианты копчения пищи
Основных способов копчения известно два — холодный и горячий. Под эти способы и разрабатываются конструкции коптильных установок. У обоих методов есть свои собственные преимущества и недостатки, поэтому сказать наверняка, какой из способов лучше, весьма затруднительно.
Например, при горячем копчении температура, как правило, находится в диапазоне от 50 до 120 градусов, а основным достоинством является быстрота приготовления. Но, вместе с тем, такую обработку нельзя назвать «бережной», так как высокая температура способна разрушить большинство полезных витаминов и микроэлементов, которые содержатся в продуктах.
Холодное копчение, напротив, позволяет приготовить пищу более щадящим способом, сохраняя полезные вещества, в отличие от горячего копчения. Температура дыма, при которой происходит холодное копчение, составляет от 20 до 35 градусов, но зато и время на приготовление пищи потребуется не 2-3 часа, а от одного до трёх суток. Столь долгий период обработки позволяет продуктам дольше сохранять свою свежесть и быть пригодными к употреблению еще 3-5 недель после копчения. Поэтому люди, которые хотят приготовить продукты сразу на долгий промежуток времени, выбирают метод холодного копчения, и для этого подойдёт самодельная коптильня с дымогенератором.
Дымогенератор для копчения своими руками: конструктивные элементы
Самостоятельное изготовление такого устройства не займет много времени. Конструкция дымогенератора включает в себя несколько основных элементов, которые необходимо подготовить перед началом сборки. Рассмотрим их более подробно.
В первую очередь потребуется трубка (металлическая). Ее форма может быть круглой или же квадратной. Первый вариант является более предпочтительным. Это связано с тем, что круглое сечение увеличивает пропускную способность дыма и не препятствует его транспортировке. Трубка дымогенератора для коптильни должна иметь диаметр от 100 до 140 мм. Она является главным элементом конструкции, где происходит образование дыма и его движение.
Далее потребуется подготовить трубки для сборки эжектора. В этом случае подбираются изделия меньшего диаметра. Еще один важный элемент конструкции – пружина. Ее размещают внутри камеры. Данная деталь способствует поднятию дыма из нижних слоев щепы вверх.
Обязательным элементом дымогенератора для холодного копчения является компрессор. Это устройство необходимо для подачи воздуха в эжектор. Наличие термометра не считается обязательным условием. Однако специалисты все же рекомендуют оснастить самодельное устройство градусником. Это позволит следить за изменением температуры внутри камеры, продуцирующей дым, и избежать ее перегрева.

В основе конструкции дымогенератора – корпусный элемент, который может быть округлой или цилиндрической формы
Все вышеперечисленные детали можно приобрести в хозяйственных и строительных магазинах. Для сборки дымогенератора необходимо также приобрести такие инструменты, как болгарка, сварочный прибор.
Примеры изготовления компрессора для дымогенератора своими руками
Собирая вентилятор улитку своими руками, важно правильно подобрать емкость и основной элемент, поскольку неправильная мощность или маленький объем канистры или бутылки приведут к сбою в функционировании и потребности в замене деталей. Самостоятельная сборка компрессора — дешево и практично
Самостоятельная сборка компрессора — дешево и практично
В любом случае алгоритм действий аналогичен:
- В дне емкости делается отверстие, куда крепится вентилятор.
- В крышке делается другое отверстие, через которое прибор подсоединяется к дымогенератору.
При этом при работе с разными емкостями имеются и особенности.
Из пластиковой бутылки
Возможно использовать бутылки для вентилятора улитки от 2 л., но оптимальный объем – 10 л. С такой емкостью удобнее работать, и функциональные возможности ее больше.
Изготавливая своими руками вентилятор, следует позаботиться о герметизации всех соединений и прочных креплениях, поэтому для работы потребуется клеевой пистолет, метизы, а также прорезиненные прокладки для эффективной фиксации.
Из пластиковой или металлической канистры
Использование канистр при изготовлении своими руками нагнетателя усложняется необходимостью установки приспособления для регулировки оборотов. Резистор подсоединяется с помощью паяльника к блоку питания. Также для фиксации трубок из нержавейки или полипропилена лучше применить газовый ключ, что сделает крепления более надежным.
Продукты, приготовленные методом холодного копчения, порадуют даже изысканных гурманов, предпочитающих еду из дорогих ресторанов типа sous vide. Еда из домашней коптилки будет такой сочной, красивой и полезной, что не оставит равнодушным никого.
Как сделатьДымогенераторИзготовление простого компрессора для дымогенератора
На разные праздники и просто без повода, все без исключения любят полакомиться копченым мясом или рыбой. Ведь наряду с невероятным вкусом, такие блюда также обладают просто умопомрачительным ароматом. Однако далеко не все могут себе позволить купить такие деликатесы в магазине. К тому же, в большинстве случаев качество таких магазинных продуктов нередко оставляет желать лучшего. Именно поэтому многие любители деликатесов предпочитают коптить мясо самостоятельно в домашних условиях.
Для этого вовсе не обязательно тратить большие финансовые средства на покупку коптильни, а можно собрать такое устройство самостоятельно из подручных материалов. Так, для обустройства шкафов для коптилен используются любые емкости, начиная от обыкновенных канистр и заканчивая корпусом от старого холодильника.
Из чего можно и как сделать компрессор для коптильни своими руками
Вентилятор улитка для дымогенератора, собранный своими руками, – это эффективный и экономичный вариант. Соорудить такой аппарат можно, используя простые подручные средства. В качестве основного элемента может быть взят компьютерный кулер или компрессор от холодильника или авто. Даже с помощью изготовленного своими руками вентилятора улитки для дымогенератора коптильный аппарат будет обладать необходимой мощностью для проведения эффективного копчения.
Из кулера ПК
Вентилятор улитка из кулера от компьютера – самый распространенный вариант для сборки своими руками. Деталь находится в свободном доступе. Питаться может от USB нагнетатель воздуха или от PowerBank. Делается вентилятор для дымогенератора из кулера для дымогенератора своими руками по следующей схеме:
В пластиковой бутылке или канистре проделывается отверстие, равное по размерам кулеру
Это важно, чтобы добиться полной герметичности. Удобно делать это электролобзиком.
Кулер вставляется в отверстие и фиксируется на клей или болты.
В крышке проделывается отверстие, куда крепится фитинг.
К переходнику присоединяется патрубок, к которому крепится гибкая трубка, ведущая к дымогенератору.
Проводится полная герметизация всех соединений.
Из аквариумного компрессора
Плюс применения аквариумного компрессора в том, что в нем в большинстве моделей есть готовая система регулировки интенсивности подачи воздуха. Для изготовления вентилятора подойдет только активный агрегат, погружной с этой целью не применяют. Из нагнетателя выходит трубка, которую необходимо соединить с дымогенератором через штуцер. Если трубки две, то их необходимо предварительно соединить. Перегонка дыма начнется сразу после включения аппарат в сеть.
Из компрессора от холодильника
От холодильника компрессор также может применяться в домашней коптильне. Своими руками дополнительно изготавливается сборник, в котором будет накапливаться воздух. Это позволит агрегату на время отключаться, чтобы избежать перегрева. Как только запасы начнут заканчиваться, устройство включится снова. Чтобы добиться такой функциональности, на устройстве устанавливается реле давления, которое будет реагировать на изменение показателей, включением или выключением вентилятора.
Из автокомпрессора
Автомобильные компрессоры также применяют для подобных целей. Это могут быть устройства от любых авто: Эталон, Tata и др. Им также свойственен перегрев, поэтому подключение проводится по аналогичной схеме с компрессором от холодильника. Если правильно установить прессостат, то аппарат осуществит самостоятельное включение и выключение, обеспечит при этом бесперебойную подачу воздуха в течение 24 часов.
Какой компрессор установить?
Компрессор – это аппарат, предназначенный для сжатия и перемещения воздуха, газа либо пара. В устройстве коптильни такое устройство – деталь немаловажная. Ведь от регулировки подачи воздуха зависит напор дыма, а, значит, и качество будущего деликатеса. Расход опилок также связан не только с размером самой коптильни, но и с мощностью компрессора.
Компрессор, применяемый в дымогенераторах холодного копчения, обязан соответствовать определенным требованиям. Он должен:
- работать непрерывно достаточно длительное время;
- быть экономичным в плане потребления электричества и приобретения деталей для замены;
- иметь возможность регулирования поступающего воздуха.
Принцип работы этого устройства основывается на том, что оно генерирует постоянный поток воздуха невысокого давления и при этом может создать инжекционный эффект. Многие любители домашнего копчения уверены, что подавать воздух может любой насос. Ведь для работы небольшой коптильни требуется давление в 0,81 атмосфер, а его способен дать даже не самый мощный аппарат. Эффективность во многом зависит от объема топочной камеры. Если он не превышает трех литров, хватит производительности в 1–2 м3/мин. Для ее обеспечения достаточно вентилятора мощностью до 100 ватт (рассеиваемого тепла).
Дымогенератор для холодного копчения своими руками: чертеж
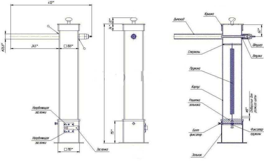
Составление чертежа – это необходимый подготовительный этап, который позволяет выполнить соответствующие расчеты и обозначить их на бумаге. В схеме обязательно обозначается корпус дымогенератора, который может иметь круглую или квадратную форму.
Корпус самодельного дымогенератора используется в качестве камеры, которая наполняется топливом. Стенки устройства обязательно должны обладать хорошей герметичностью. В противном случае дым, образованный при тлении опилок, будет рассеиваться в окружающее пространство.

Чтобы сделать дымогенератор для холодного копчения своими руками необходимо использовать чертежи
Сами устройства для копчения продуктов подразделяются на разновидности в зависимости от конструктивных особенностей и назначения. Сегодня можно встретить габаритные стационарные устройства или, наоборот, более компактные, переносные. В конструкции коптилки может присутствовать заслонка. Этот элемент позволяет увеличить приток воздуха в камеру, которая содержит топливо.
Самодельная коптильня холодного копчения может иметь две топки. Такая конструкция направлена на увеличение тяги в системе. Дымогенераторы используются как в горячих, так и в холодных коптилках. В чертеже указываются все составляющие элементы устройства. Обязательно нужно внести в схему эжектор и его размеры, а также компрессор.
Как сделать дымогенератор своими руками: изготовление эжектора
Эжектор – это устройство, которое является трубкой и используется для создания необходимого показателя тяги в дымогенераторе. Данный прибор классифицируют по месту расположения. В зависимости от этого фактора можно выделить два типа эжекторов:
нижние;

Любой дымогенератор для коптильни холодного копчения состоит из контейнера, насоса (компрессора) и эжектора
верхние.
Первый вариант не рекомендуется специалистами для коптилок, изготовленных собственноручно. Это связано с тем, что такое размещение препятствует притоку воздуха, что, соответственно, отражается на тяге в конструкции. Трубки, установленные в нижней части, требуют постоянного контроля, что не очень удобно. При составлении чертежа дымогенератора необходимо заранее продумать расположение данной трубки и зафиксировать его на рисунке.
Избежать проблем с тягой довольно просто. Все, что для этого нужно, –разместить эжектор в верхней половине дымогенератора. Такой ход имеет несколько преимуществ. Установка эжектора в верхней части способствует увеличению объема зоны сгорания. Топливо, расположенное внутри камеры, тлеет медленнее в этом случае, а также уменьшается вероятность того, что оно потухнет.
Так производится сборка эжектора для дымогенератора своими руками. Чертеж, фото и пошаговая инструкция – все это позволяет выполнить грамотную сборку данного изделия.

Схема эжектора для дымогенератора холодного копчения
Из чего сделать компрессор для дымогенератора своими руками?
Компрессор считается одной из важнейших деталей прибора, который генерирует дым для копчения продуктов. Его можно приобрести отдельно, после чего присоединить к конструкции. Но чаще всего для этих целей используются различные подручные материалы, которые можно найти в каждой квартире или доме.
Статья по теме:
Нагнетатель воздуха своими руками можно выполнить из старого кулера. Данная компьютерная деталь как нельзя лучше подходит для увеличения притока воздуха в конструкцию. Необходимо соблюдать порядок действий по трансформации кулера в компрессор.
В первую очередь потребуется взять пластиковую бутылку и обрезать ее верхнюю часть. Далее с помощью клея следует присоединить вентилятор к внутренней части обрезанного пластикового элемента. С другой стороны (к горлышку) подключается шланг. Второй выход трубки подсоединяется к дымогенератору. Такая конструкция отлично справляется со своей функцией. Единственный ее минус заключается в непрезентабельном внешнем виде.

Компрессор для дымогенератора своими руками можно выполнить из старой компьютерной детали — кулера
Еще одним распространенным вариантом является покупка аквариумного компрессора для дымогенератора. Многие люди отмечают, что устройство для производства дыма может работать и без компрессора. Но эффективность такой установки ниже, так как воздух поступает в нее естественным путем.
Таким образом, для увеличения производительности рекомендуется собрать компрессор. Причем необязательно, чтобы он имел сложную конструкцию. Простой вентилятор для дымогенератора своими руками значительно упрощает копчение, а на его производство уходит не более часа.
Как собрать дымогенератор для холодного копчения своими руками: инструкция
При самостоятельной сборке дымогенератора рекомендуется не только обратить внимание на фотоматериалы, но и посмотреть обучающие видео на данную тематику. Конструкция прибора довольно проста
Поэтому любой человек, не обладающий специальными техническими познаниями, сможет выполнить сборку этого агрегата.

Для изготовления дымогенератора не нужно специального оборудования и материалов, можно собрать его из подручных средств
Существует определенная последовательность действий, которой стоит придерживаться. Любые отклонения от инструкции могут привести к допущению ошибок, которые отразятся на функциональности устройства при его использовании. Необходимо ознакомиться со сборкой дымогенератора поэтапно.
После составления чертежа дымогенератора для холодного копчения начинается непосредственная компоновка устройства. В первую очередь потребуется выполнить корпус прибора. Для этого нужно подготовить квадратный или круглый отрезок трубы. Длина изделия не должна превышать 1 м, иначе при его использовании возникнут проблемы с показателем тяги.
В верхней части такой трубки необходимо сделать крышку. Она нужна для свободного доступа к камере дымогенератора. Это позволит без труда засыпать опилки внутрь прибора, а также проводить его очистку. В свою очередь, внизу следует предусмотреть специальную емкость, которая будет собирать золу, образовавшуюся после переработки топлива.

Изготовляя дымогенератор своими руками, его можно оснастить съемным дном
Коптильня холодного копчения с дымогенератором отличается высокой функциональностью в том случае, если ее конструкция была проработана грамотно. Наиболее простые варианты дымогенераторов изготавливаются из трубки, к которой наглухо приваривается днище. Такие приборы не предусматривают наличия зольника, а их очистка производится очень просто: накопившаяся зола просто вытряхивается из устройства.
Более технологичные конструкции оснащаются съемным дном. Ниже его уровня располагают решетку, на которую падают продукты сгорания древесины. Через нее они попадают в зольник. Независимо от того, какой вариант конструкции был выбран, все они предусматривают наличие отверстия в нижней половине корпуса. Оно необходимо для того, чтобы обеспечить подачу воздуха к тлеющей древесине. Диаметр такого отверстия не должен быть больше 6 мм, иначе опилки могут попросту загореться, что навредит процессу копчения.
Как сделать дымогенератор: обустройство дымохода и эжектора
Дымоход необходим для доставки продуктов тления щепы в камеру коптильного агрегата. Располагается дымоход в верхней части дымогенерирующего устройства
Важно запомнить, что его выполняют не в крышке, а примерно на 8 см ниже края корпуса (верхнего)

Дымоходный элемент для дымогенератора лучше делать из стали, которая обладает более высокой теплопроводностью
Для этого в стенке дымогенератора следует сделать отверстие, которое должно соответствовать диаметру трубки. Затем она приваривается к прибору с использованием сварочного оборудования. Необходимо, чтобы длина металлической трубки имела достаточный размер для того, чтобы на нее можно было набросить пластмассовую трубку, по которой дым передвигается в коптилку. Рекомендуемая протяженность этого элемента составляет 7-8 см. Дымоход должен быть в обязательном порядке изображен в чертеже дымогенератора своими руками.
Следующий этап – сборка эжектора для дымогенератора своими руками. Коптилка холодного копчения получит достаточное количество дыма, если это приспособление будет собрано правильно.
Понять особенности установки эжектора помогут готовые чертежи дымогенераторов. Их без труда можно найти в интернете. Это устройство связано с компрессором, который нагнетает внутри него давление. Двигающийся воздух создает зону разряжения в этом элементе. В результате дым из эжектора проходит в дымоходную трубку.

Если расположить эжектор внизу прибора, то в устройстве не будет естественной тяги воздуха, так как камера для продуктов и бункер для опилок будут находиться на одном уровне
Полезные советы
Все материалы, которые используются в данной статье для устройства и сборки дымогенератора, являются усредненными, то есть примерными. Допустим, если вы не нашли стальную трубу, можно использовать бидон из-под молока, старый огнетушитель, глубокую кастрюлю или любые металлические емкости, пусть даже из самых легких и мягких металлов.
То же самое относится и к размерам. На чертежах указаны примерные размеры, и вы должны соотносить их с вашим конкретным случаем. Всё будет зависеть от конструкции самой коптильни.
Ещё не забывайте, что если ваш дымогенератор соединяется с коптильней длинным шлангом, то в нём будет скапливаться конденсат. Дым выходит из устройства горячим, и охлаждается по мере движения по шлангу, поэтому из него неизбежно будет выделяться влага. Если её не удалять, то она может совсем закупорить шланг! Поэтому предусмотрите тройник на шланге, через который вода будет стекать в бутылку.
Популярные записи
- Стул для туалетного столика Стулья для туалетных столиков в Москве — 189 Товаров Компания из Москвы,доставка 29643 a В…
- Герметик силиконовый санитарный Герметик силиконовый санитарный белый в Москве — 1491 товар Компания из Москвы, доставка (завтра) 140…
- Полка в прихожую В настоящее время существует огромное количество самых разнообразны вариантов полок в прихожую, причем это напрямую…
- Утепление пола в деревянном Утепление пола в деревянном доме снизу: материалы и технология монтажа ПОДЕЛИТЕСЬВ СОЦСЕТЯХ Одной из распространенных…
Настоящие деликатесы холодного копчения можно сделать в домашних условиях. В этом поможет дымогенератор, приобретенный в магазине либо собранный своими руками. Но чтобы приготовление лакомств не обернулось неприятными последствиями, нужно четко представлять технологию работы всех узлов прибора, в частности, компрессора.
Альтернативные решения
Как изготовить компрессор из кулера для дымогенератора, вы смогли узнать, если ознакомились с информацией выше. Однако перед началом работ необходимо изучить устройство более подробно. Например, стоит знать, что компрессор – это аппарат для сжатия и перемещения воздуха, пара или газа
А важность этого устройства в коптильне обусловлена тем, что от регулировки подачи воздуха будет зависеть напор дыма и качество деликатесов
Расход опилок связан с размером коптильни и мощностью компрессора. В роли альтернативного решения может выступить аквариумный компрессор, мощность которого составляет 5 Вт. Продвинутые домашние изобретатели, однако, довольно часто используют автомобильные приборы на 12 Вт. Но они довольно быстро нагреваются и предполагают необходимость установки выпрямителя.
Если вы решили изготовить компрессор для дымогенератора своими руками, то можно предпочесть еще и аппарат от старого холодильника. Самым простым решением станет приобретение готового компрессора, который будет использоваться для доработки дымогенератора. Для некоторых цена может показаться достаточно высокой, однако конструкцию, работающую от 220 В на 9 л/мин вы сможете приобрести за 1500 руб.

Дымогенераторы промышленного производства
- HANHI, Zmei. Цена 9800−10800 руб. Емкость для топлива объемом 10 литров. Одной загрузки достаточно на 10 час работы. Мощность встроенного электронагревателя 1 кВт. Наличие фильтра, термометра, воздушного змеевика для охлаждения дыма.
- ДымОК. Цена 4700−5200 руб. Емкость для топлива объемом 0.5 кг. Материал корпуса — нержавеющая сталь AISI 304. Время работы до 6.5 час. Наличие компрессора, соединительных шлангов в комплекте.
- УЗБИ, Дым Дымыч 01М. Цена 2800−3900 руб. Одной загрузки достаточно на 15 час работы. Наличие компрессора в комплекте.
- Smoke 2.0, Smoke House. Цена 1440−1800 руб. Емкость для топлива объемом 2.5 литров. Материал корпуса — нержавеющая сталь, толщина 2 мм. Время работы 3-6 час.
- Merkel, Premium. Цена 9900−10800 руб. Одной загрузки достаточно на 12 час работы. Материал корпуса — нержавеющая сталь, толщина 2 мм. Наличие фильтра и специальной зажигалки в комплекте.

Дымогенератор без компрессора
Дымогенератор без компрессора, представляющий собой металлический ящик с опилками, с выводом дыма через трубу, используется при холодном копчении. Сама коптильня в этом случае располагается с одной стороны, а очаг на который устанавливается дымогенератор находится с другой стороны. В этом случае сложно проследить за температурным режимом и приходится часто добавлять топливо, но есть и другой вариант дымогенератора, лишенный этих недостатков — это дымогенератор с электрической спиралью от плиты. При ее нагревании опилки тлеют, выделяя дым, а блок управления позволяет контролировать температуру.
Различные приспособления для дымогенератора
Для повышения качества дыма подойдёт дымогенератор с дополнительными приспособлениями.
Устройство инжектора дымогенератора
Самой ответственной и сложной частью аппарата является эжектор. От его изготовления и настройки зависит качество и количество дыма и работа всей установки.
Принцип действия этого устройства следующий:
- поток воздуха, двигающийся по дымоходу, создаёт внутри него пониженное давление;
- низкое давление в трубе дымохода затягивает дым из дымогенератора и создаёт дополнительную тягу через нижние отверстия.
Таким образом, работа эжектора усиливает поступление дыма в коптильную камеру, тление щепы и интенсивность дымовыделения.
Конструкция и самостоятельная сборка эжектора
Изготовить это приспособление можно из водопроводного тройника. Средняя часть подключается к источнику дыма, одна из крайних — к коптильной камере, а в противоположную вкручивается пробка с трубкой от компрессора. Температура сравнительно невысокая, поэтому материал пробки может быть любым: пластмасса, резина или металл.
Трубка для подачи воздуха в эжектор берётся диаметром 6-10 мм и такой длины, чтобы заходить в дымоход на 8-10 см.
Важно обеспечить соосность сопла и дымохода. Для этого оно должно плотно входить в пробку — в резиновую вставляется, а в металлическую вкручивается на резьбе
Кулер для дымогенератора
В холодном копчении используется дым комнатной температуры, а из генератора он выходит до 120°С, особенно при нижнем подключении дымохода. Для снижения его температуры устанавливается охладитель, или кулер.
Это цилиндрическая или квадратная камера размером, аналогичным корпусу дымогенератора. Попадая в эту камеру, дым замедляет движение и остывает. Для большей эффективности вход в охладитель делается сверху, а выход — снизу.
При остывании из дыма выделяется конденсат, который скапливается на дне кулера, поэтому дополнительно к нему необходимо установить сборник конденсата.
Фильтр для дымогенератора
Для улучшения качества дыма его следует очистить от смол, копоти и других веществ. Для этого в дымоход устанавливается фильтр.
Конструктивно это расширение дымохода, наполненное стальными стружками или металлическими мочалками для мытья посуды. Это расширение может быть выполнено в виде дополнительной камеры с крышкой для замены фильтра или трубой большего диаметра, чем дымоход. В этом случае для замены стружки дымоход придётся подвергать частичной разборке.
Компрессор для дымогенератора холодного копчения
Один из важных узлов дымогенератора — компрессор. Он направляет поток воздуха через эжектор. Этот поток переносит дым в коптильню, создаёт разрежение в камере сгорания и дополнительную тягу.
Самостоятельное изготовление компрессора
Самый простой компрессор можно сделать из компьютерного кулера и пластиковой бутылки:
- в дне бутылки вырезается отверстие, соответствующее диаметру кулера;
- в него вставляется вентилятор и закрепляется скотчем;
- в крышке проделывается отверстие для соединительной трубки;
- трубка вставляется в крышку, и место соединения также обматывается скотчем;
- кулер подключается к любому источнику питания =12 В.
Жидкость для генератора дыма своими руками
Кроме дымогенераторов, предназначенных для копчения продуктов, есть устройства, создающие дым на театральной и концертной сценах.
В этих аппаратах дым вырабатывается при попадании специального раствора на нагреватель и его испарении, то есть это не дым, а пар.
Состав может быть разным, например:
- глицерин – 15%;
- спирт – 10%;
- дистиллированная вода – 75%.
Естественно, пар от такого раствора не годится для копчения продуктов.





























